UBD 132 301
Unterflur-Bodendose UBD 130 aus Chromstahl inkl. Deckel mit Kante, geschlossen, 30mm Vertiefung und 1 Schnurauslass
Download
UBD 132 301, 5522-01-194-400.pdf
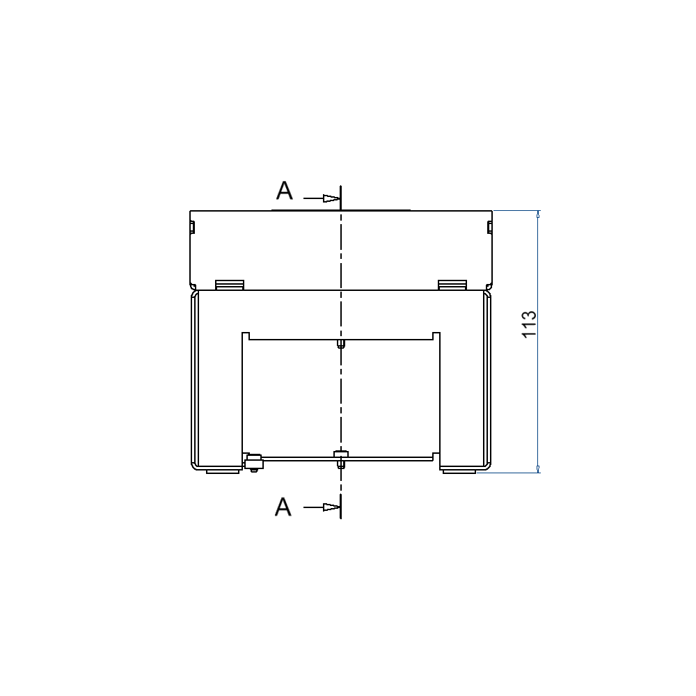
Mindestbodenaufbauhöhe von Roh- bis Fertigboden bei:
- (3 FLF): 132mm
- (45x45-Ausschnitt): 127mm
Vorgeschlagenes Zubehör
Alternative Produkte
Vergleichen
Spezifikationen für Unterflur-Bodendose UBD 130 aus Chromstahl inkl. Deckel mit Kante, geschlossen, 30mm Vertiefung und 1 Schnurauslass
| Anzahl FLF-Plätze | 3 |
| Auslass | 1 Schnurauslass |
| Einbautiefe (mm) | ab 132 / bis 221 |
| Farbe / Material | Chromstahl |
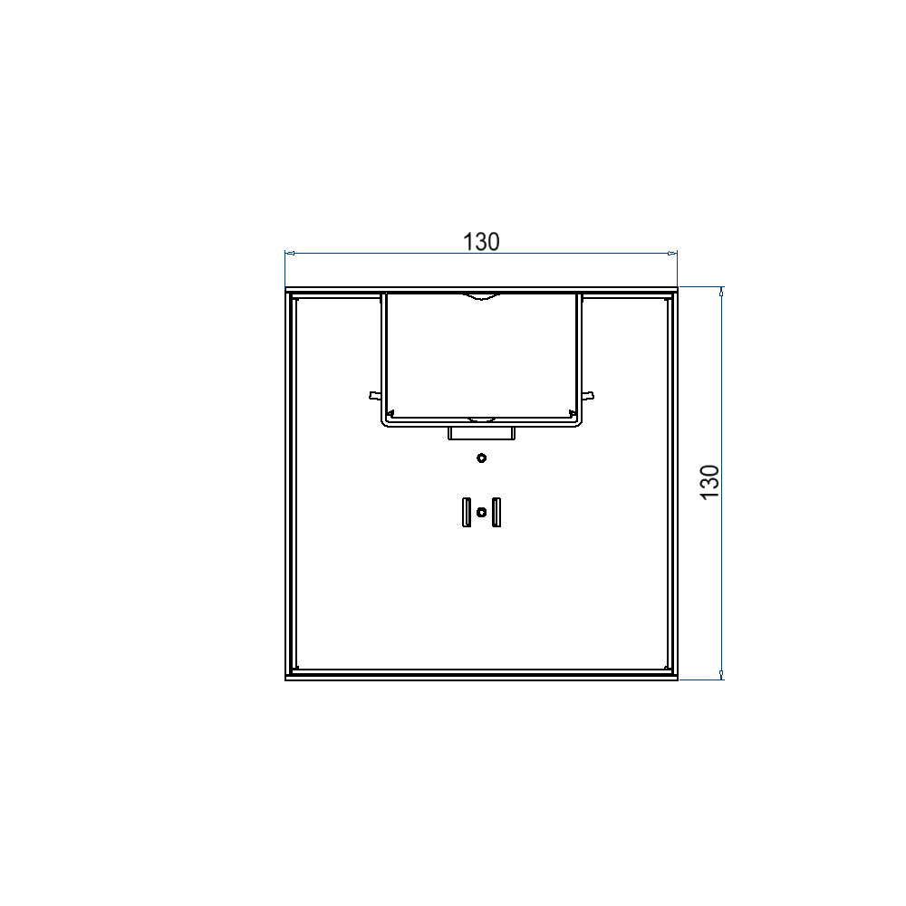
| Grösse der Dosen | 130 |
| Vertiefung im Deckel | 30 mm |