UBD 162 202
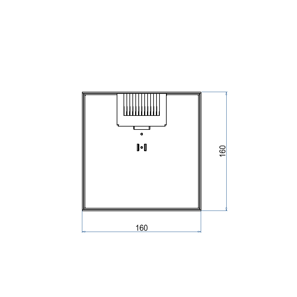
Unterflur-Bodendose UBD 160 aus Chromstahl inkl. Deckel mit Kante, geschlossen, 20mm Vertiefung und 1 Bürstenauslass
Download
UBD 162 202, 5522-01-253-500.pdf
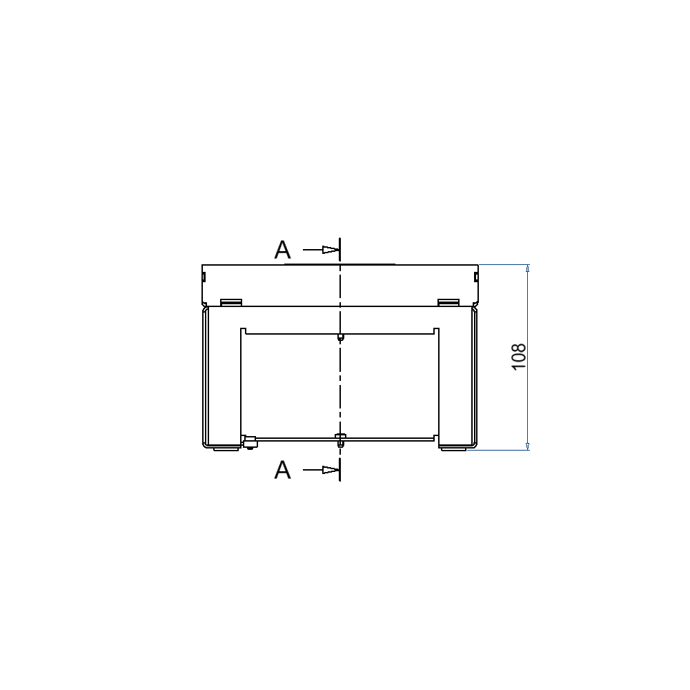
Mindestbodenaufbauhöhe von Roh- bis Fertigboden bei:
- (4 FLF): 121mm
- (45x45-Ausschnitt): 119mm
Vorgeschlagenes Zubehör
Alternative Produkte
Vergleichen
Spezifikationen für Unterflur-Bodendose UBD 160 aus Chromstahl inkl. Deckel mit Kante, geschlossen, 20mm Vertiefung und 1 Bürstenauslass
| Anzahl FLF-Plätze | 4 |
| Auslass | 1 Bürstenauslass |
| Einbautiefe (mm) | ab 121 / bis 216 |
| Farbe / Material | Chromstahl |
| Grösse der Dosen | 160 |
| Vertiefung im Deckel | 20 mm |