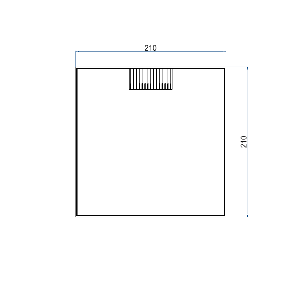
UBD 210 208
Unterflur-Bodendose UBD 210 aus Chromstahl inkl. belegtem Deckel aus Chromstahl, geschliffen, und 1 Bürstenauslass
Download
UBD 210 208, 5515-01-013-1100.pdf
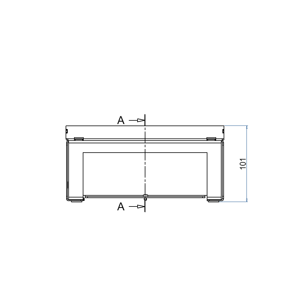
Mindestbodenaufbauhöhe von Roh- bis Fertigboden:
- (6 FLF): 112mm
Vorgeschlagenes Zubehör
Alternative Produkte
Vergleichen
Spezifikationen für Unterflur-Bodendose UBD 210 aus Chromstahl inkl. belegtem Deckel aus Chromstahl, geschliffen, und 1 Bürstenauslass
| Anzahl FLF-Plätze | 6 |
| Auslass | 1 Bürstenauslass |
| Einbautiefe (mm) | ab 112 / bis 209 |
| Farbe / Material | Chromstahl |
| Grösse der Dosen | 210 |
| Vertiefung im Deckel | Deckel ohne Vertiefung aus geschliffenem Chromstahl |