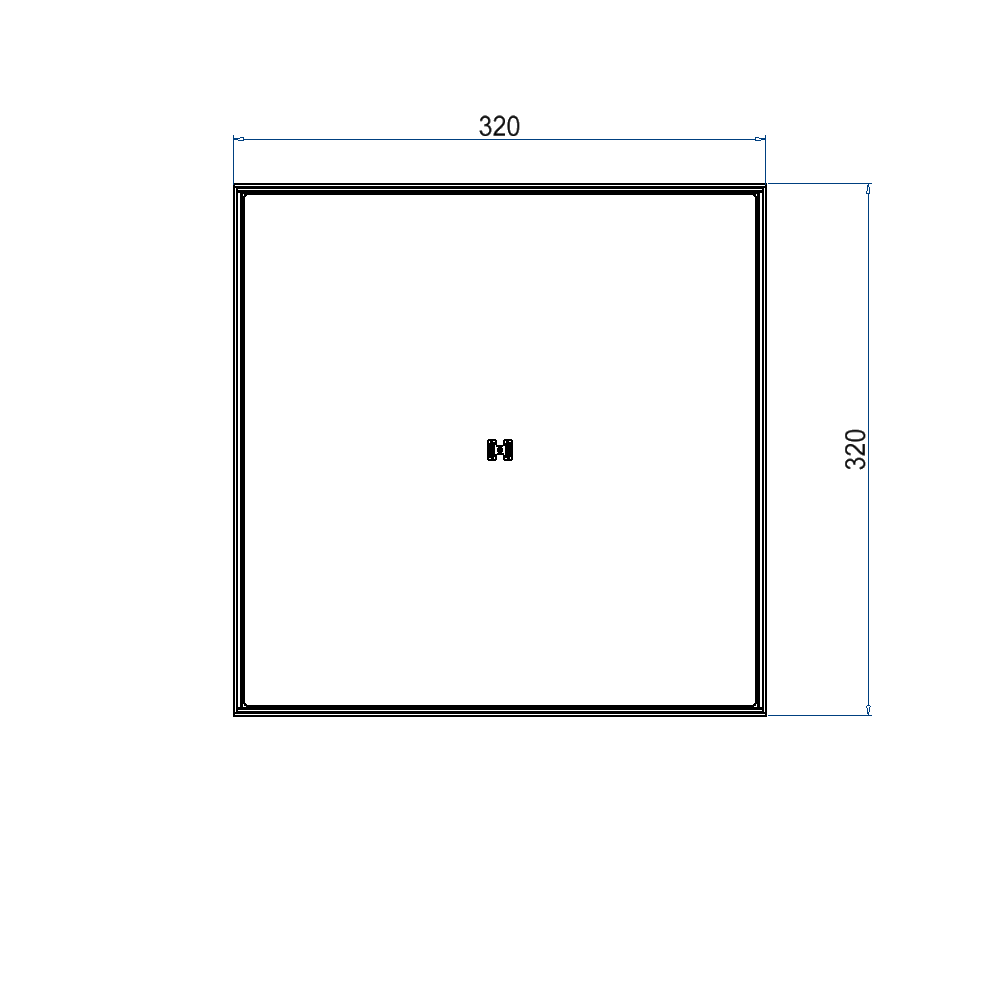
UBD 320 319
Unterflur-Bodendose UBD 320 aus Chromstahl inkl. Blinddeckel mit Kante, geschlossen, und 15mm Vertiefung
Download
UBD 320 319, 5515-01-017-2200.pdf
Mindestbodenaufbauhöhe von Roh- bis Fertigboden:
- (2x4 FLF horizontal): 72mm
- (2x7 FLF vertikal): 94mm
- (45x45-Ausschnitt): 84mm
Vorgeschlagenes Zubehör
Alternative Produkte
Vergleichen
Spezifikationen für Unterflur-Bodendose UBD 320 aus Chromstahl inkl. Blinddeckel mit Kante, geschlossen, und 15mm Vertiefung
| Anzahl FLF-Plätze | 8, 14 |
| Auslass | Blinddeckel ohne Auslass |
| Einbautiefe (mm) | ab 72 / bis 223 |
| Farbe / Material | Chromstahl |
| Grösse der Dosen | 320 |
| Vertiefung im Deckel | 15 mm (z.B. für Parket) |